Vous recherchez un espace pour votre bureau ou commerce afin d’y établir votre entreprise ?

Ne cherchez plus! La MC2M vous offre:

 

Des espaces fonctionnels pour votre entreprise

C’est ici que vous trouverez un lieu idéal pour votre bureau ou commerce, parfaitement adapté à vos besoins.

CONSULTER LE ZONAGE, LES USAGES AUTORISÉS ET EXCLUSIONS : LIRE ICI

Un environnement de travail exceptionnel et accessible

Profitez d’une qualité de vie enviable : milieu chaleureux, services auxiliaires appréciés et une localisation stratégique. La MC2M est accessible par train, métro, bus, taxi, bixi et auto. Elle est située au centre de l’Île de Montréal en proximité des autoroutes 15 et 40.

Des espaces adaptés pour tous vos projets

Nous avons des suites de différentes tailles pour vos bureaux ou votre commerces. Disponibilités immédiate, à court, moyen ou long terme. Consulter CI-DESSOUS toutes les fiches techniques et contactez-nous pour un visite.

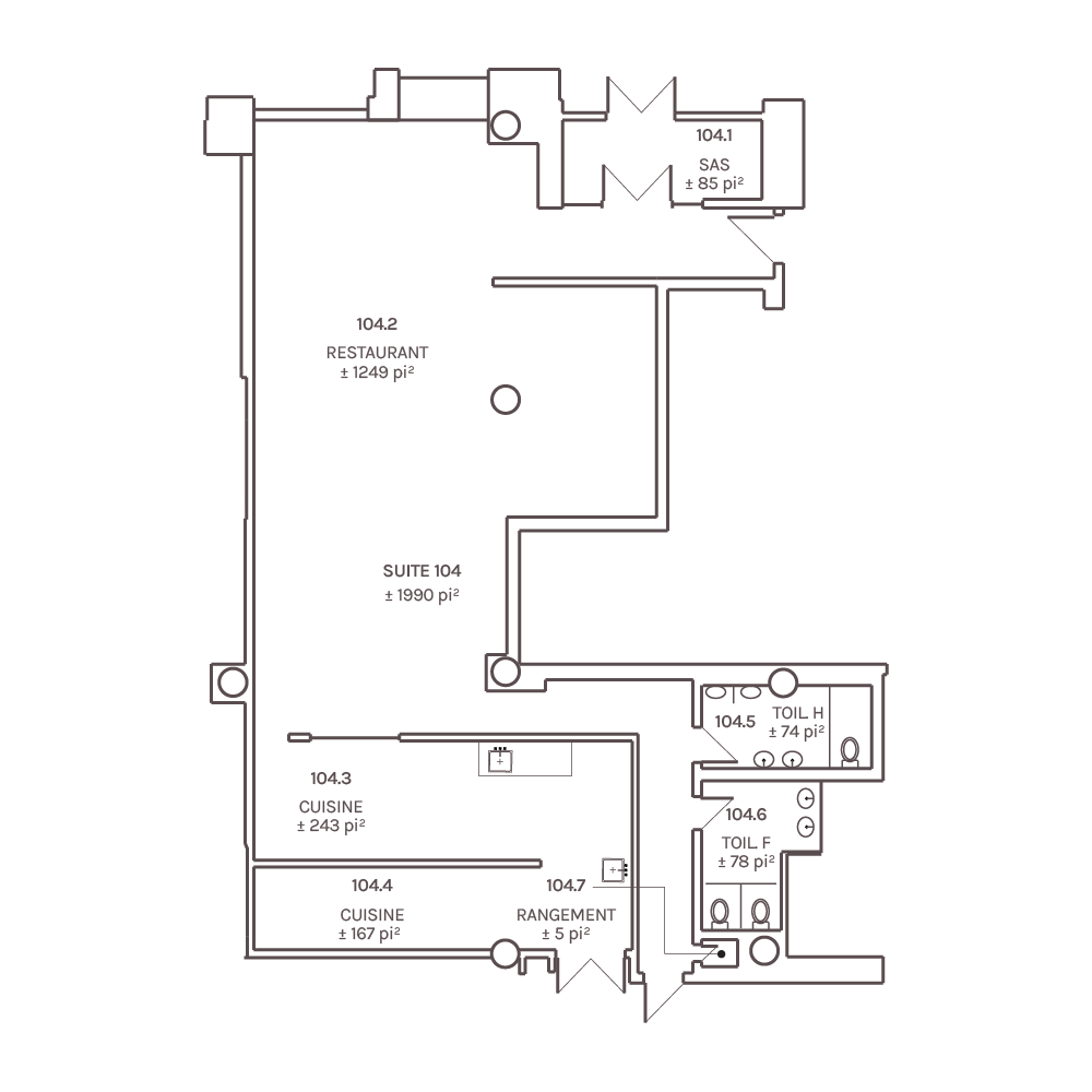
Suite 104

La suite 104 est un espace idéal pour un restaurant, un café ou un commerce à fort achalandage. Elle est composée d'un vaste espace ouvert, d'un espace pour plonge et cuisine commerciale (entrée de gaz naturel incluse) et de sanitaires H-F.

1990 pi² – Très grand espace ouvert + espace cuisine équipée +sanitaire H-F

Immédiate

Voir plus de détails(Ouvre dans un autre onglet)

Suite 105A/B

La suite 105A/B est un emplacement stratégique divisé en deux partie avec une arche qui permet d’exploiter l’espace de façon optimale.

1319 pi² – 2 suites en 1 – 2 locaux distincts

Immédiate

Voir plus de détails(Ouvre dans un autre onglet)

Suite 203

La suite 203 offre un aménagement généreux et fonctionnel, idéal pour une entreprise recherchant un espace de travail structuré.

885 pi² – 3 bureaux fermés + 1 espace d’accueil

1er octobre 2025

Voir plus de détails(Ouvre dans un autre onglet)

Suite 300

La suite 300 est un espace fonctionnel conçu pour les petites équipes et les entreprises en croissance. 

892 pi² – 2 bureaux fermés + 1 espace d’accueil

À négocier

Voir plus de détails(Ouvre dans un autre onglet)

Suite 301

La suite 301 offre un aménagement généreux et fonctionnel, idéal pour une entreprise recherchant un espace de travail structuré.

1787 pi² – 5 bureaux fermés + 1 espace d’accueil + 1 espace de rangement

Immédiate

Voir plus de détails(Ouvre dans un autre onglet)

Suite 307

La suite 307 est un espace polyvalent et modulable qui s’adapte à des besoins variés : atelier pour artisant, studio créatif, espace collaboratif ou bureau à air ouvert.

600 pi² – 1 salle polyvalente

Immédiate

Voir plus de détails(Ouvre dans un autre onglet)

Suite 308

La suite 308 offre un aménagement généreux et fonctionnel, idéal pour une entreprise recherchant un espace de travail structuré.

1686 pi² – 5 bureaux fermés + 1 espace d’accueil + 1 espace de rangement

À négocier

Voir plus de détails(Ouvre dans un autre onglet)

Suite 404

La suite 404 avec sa réception centrale et ses trois bureaux fermés, est parfaite pour une entreprise recherchant un cadre structuré et accueillant.

1480 pi² – 3 bureaux fermés + 1 réception

Immédiate

Voir plus de détails(Ouvre dans un autre onglet)

Suite 414A

La suite 414A offre un aménagement généreux et fonctionnel, idéal pour une entreprise recherchant un espace de travail structuré.

656 pi² – 1 salle polyvalente + 1 vestibule

À négocier

Voir plus de détails(Ouvre dans un autre onglet)

Suite 414C

La suite 414C est un espace ouvert et lumineux conçu pour les professionnels qui recherchent simplicité et flexibilité

NOTE: Il est possible d'ajouter entre 225 et ± 763 pi2 à la suite pour créer quelques bureaux additionnels selon vos besoins.   

658 pi² – 1 salle polyvalente

Immédiate

Voir plus de détails(Ouvre dans un autre onglet)