Menu Affichage
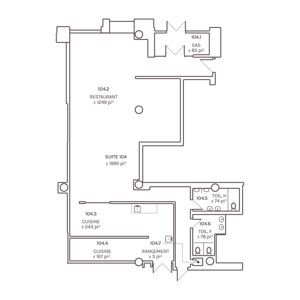
Suite 104

La suite 104 est un espace idéal pour un restaurant, un café ou un commerce à fort achalandage. Elle est composée d'un vaste espace ouvert, d'un espace pour plonge et cuisine commerciale (entrée de gaz naturel incluse) et de sanitaires H-F. Son emplacement de premier choix en rez-de-chaussée assure une visibilité maximale et une accessibilité avec une entrée privée sur avenue du Parc. L’espace est entièrement adaptable aux besoins d’un entrepreneur visionnaire cherchant à créer un lieu convivial, unique et fonctionnel.
- Rez-de-chaussée
- Superficie totale — 1990 pi²
- Très grand espace ouvert
- Cuisine équipée d'une entrée de gaz naturel
- Sanitaires publics homme et femme
- Espace de rangement
- Disponibilité : immédiate
- Informations et visite sur rendez-vous
Fiche technique : Voir la fiche Suite 104
Infos et rendez-vous !